令和8年4月23日 20時57分 更新
次回更新予定日:令和8年4月24日
山手線 池袋駅の事務所 賃貸物件詳細情報
プロフ
HP物件公開数 9513件
取扱物件数 9781件
お気軽にお問い合わせ下さい。
03-5953-6696
メールはこちら
有限会社 コンパス
トップページへ
閉じる
希望条件登録フォームへ
物件コード
10335
交通
山手線 池袋駅 徒歩6分
住所
豊島区南池袋2丁目
タイプ
事務所
階/階建
3/9
家賃
¥380,000
共益費
--
礼金
1ヶ月
敷金
2ヶ月
保証金
敷引
面積
55.92m
2
取引態様
構造
鉄骨鉄筋コンクリート造
火災保険
要加入
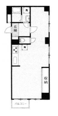
間取
1R
間取詳細
16.91坪
築年月
向き
契約期間
2年
駐車場料金
入居費用
¥1,939,000
入居時期
即入居
特色
30万台、16坪事務所、オートロック、エレベーター、エアコン、収納、システムキッチン、バストイレ別、独立洗面台、室内洗濯機置場、洋室、バルコニー、二階以上、角部屋
詳細
掲載されている物件データが現況と異なる場合は現況を優先します
■カテゴリから検索■
池袋賃貸事務所
|
池袋賃貸事務所東口
|
池袋賃貸事務所30万〜50万台
|
池袋賃貸事務所10坪〜20坪台