令和7年11月28日 21時09分 更新
次回更新予定日:令和7年11月29日
山手線 池袋駅の店舗事務所 賃貸物件詳細情報
プロフ
HP物件公開数 9321件
取扱物件数 9587件
お気軽にお問い合わせ下さい。
03-5953-6696
メールはこちら
有限会社 コンパス
トップページへ
閉じる
希望条件登録フォームへ
物件コード
10134
交通
山手線 池袋駅 徒歩8分
住所
豊島区池袋2丁目
タイプ
店舗事務所
階/階建
1/5
家賃
¥264,000
共益費
¥8,800
礼金
1ヶ月
敷金
保証金
4ヶ月
敷引
面積
59.5m
2
取引態様
仲介
構造
鉄筋コンクリート造
火災保険
要加入
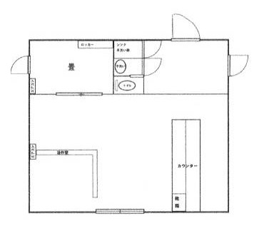
間取
1R
間取詳細
17.99坪
築年月
S56/01
向き
北
契約期間
2年
駐車場料金
入居費用
¥1,870,000
入居時期
即入居
特色
20万台、約18坪店舗事務所、エレベーター、エアコン、収納、キッチン、トイレ、洗面台、1階路面
詳細
掲載されている物件データが現況と異なる場合は現況を優先します
■カテゴリから検索■
池袋賃貸店舗
|
池袋賃貸店舗1階
|
池袋賃貸店舗西口
|
池袋賃貸店舗10万〜20万台
|
池袋賃貸事務所
|
池袋賃貸事務所1階
|
池袋賃貸事務所西口
|
池袋賃貸事務所10万〜20万台
|
池袋賃貸事務所10坪〜20坪台