| 物件コード |
10127 |
| 交通 |
山手線 池袋駅 徒歩9分 有楽町線 東池袋駅 徒歩5分 |
住所 |
豊島区南池袋2丁目 |
| タイプ |
マンション |
階/階建 |
7/9 |
| 家賃 |
¥15,000 |
共益費 |
¥9,000 |
| 礼金 |
1ヶ月 |
敷金 |
1ヶ月 |
| 保証金 |
|
敷引 |
|
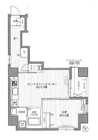
| 面積 |
42.79m2 |
取引態様 |
仲介 |
| 構造 |
鉄筋コンクリート造 |
火災保険 |
要加入 |
| 間取 |
1LDK |
間取詳細 |
洋6.2LDK10.4 |
| 築年月 |
H24/02 |
向き |
南東 |
| 契約期間 |
2年 |
駐車場料金 |
|
| 入居費用 |
¥69,750 |
入居時期 |
即入居 |
| 特色 |
15万台、1LDKマンション、オートロック、エレベーター、エアコン、収納、ガスキッチン2口、バストイレ別、独立洗面台、室内洗濯機置場、洋室、フローリング、バルコニー、追焚バス、TVインターホン、二階以上、BS、CS、CATV、インターネット対応、東通り近く |
| 詳細 |
|
| 掲載されている物件データが現況と異なる場合は現況を優先します |