令和7年11月28日 21時09分 更新
次回更新予定日:令和7年11月29日
山手線 池袋駅の事務所 賃貸物件詳細情報
プロフ
HP物件公開数 9321件
取扱物件数 9587件
お気軽にお問い合わせ下さい。
03-5953-6696
メールはこちら
有限会社 コンパス
トップページへ
閉じる
希望条件登録フォームへ
物件コード
10116
交通
山手線 池袋駅 徒歩1分
住所
豊島区西池袋1丁目
タイプ
事務所
階/階建
9/11
家賃
¥115,000
共益費
--
礼金
1ヶ月
敷金
2ヶ月
保証金
敷引
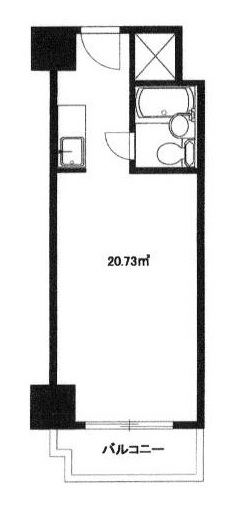
面積
20.73m
2
取引態様
構造
鉄骨鉄筋コンクリート造
火災保険
要加入
間取
1R
間取詳細
6.26坪
築年月
S53/03
向き
契約期間
2年
駐車場料金
入居費用
¥580,750
入居時期
即入居
特色
11万台、6坪事務所、エレベーター、外観タイル、キッチン、トイレ、3点UB・バストイレ洗面、北口駅前、繁華街近く
詳細
掲載されている物件データが現況と異なる場合は現況を優先します
■カテゴリから検索■
池袋賃貸24時間使用可
|
池袋賃貸事務所
|
池袋賃貸事務所西口
|
池袋賃貸事務所10万〜20万台
|
池袋賃貸事務所10坪未満